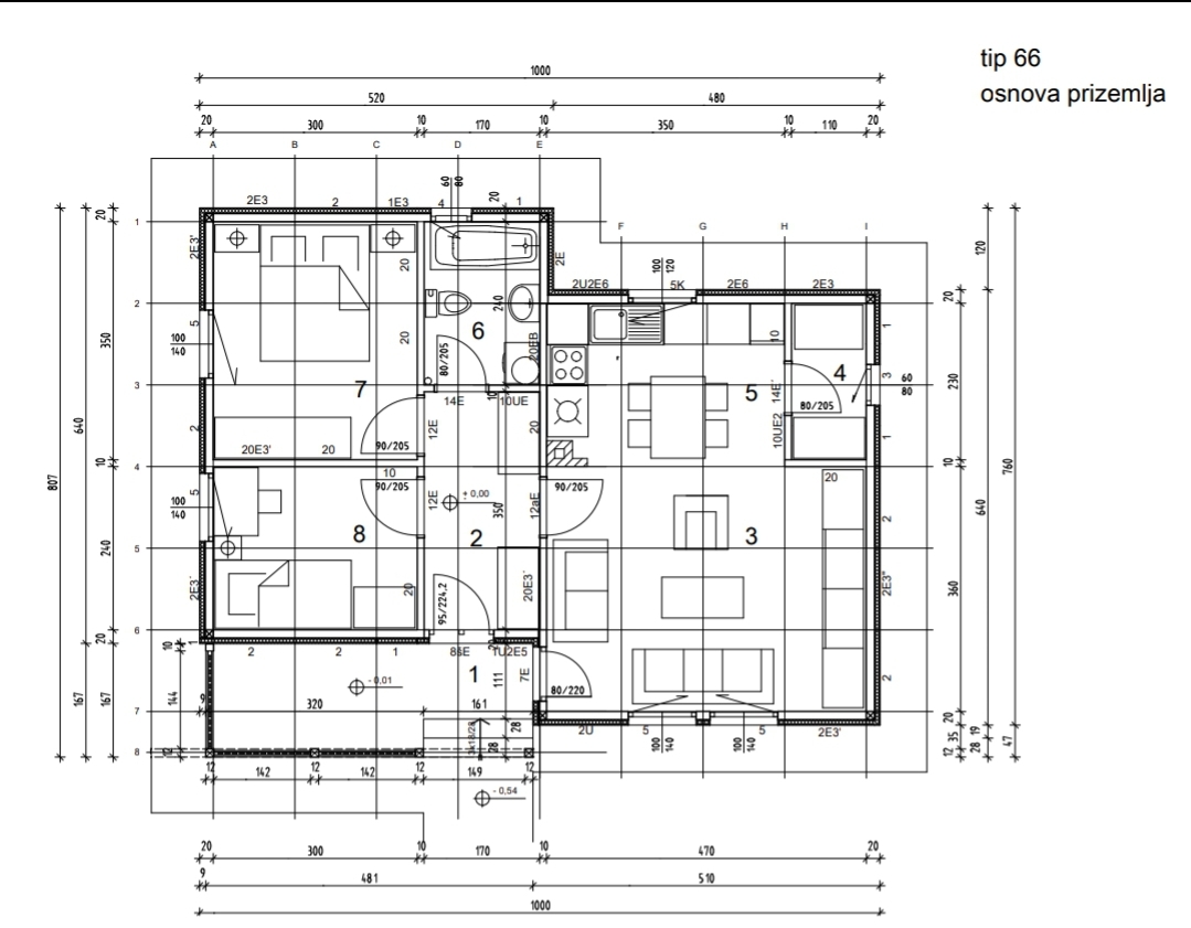
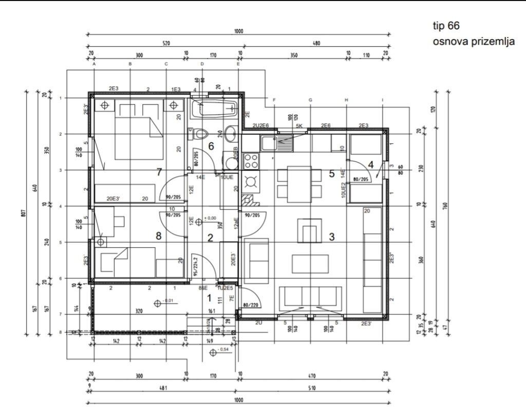
Tehničke karakteristike
Kvadratura (bruto): 70.56 m2
Kvadratura (neto): 72.02 m2
Broj soba: 5
Prostorije:
1. Terasa 7.62 m2
2. Predsoblje 5.95 m2
3. Dnevna soba 17.28 m2
4. Ostava 2.53 m2
5. Kuhinja 8.34 m2
6. Kupatilo 4.08 m2
7. Spavaca soba 10.50 m2
8. Decija soba 15.72 m2



