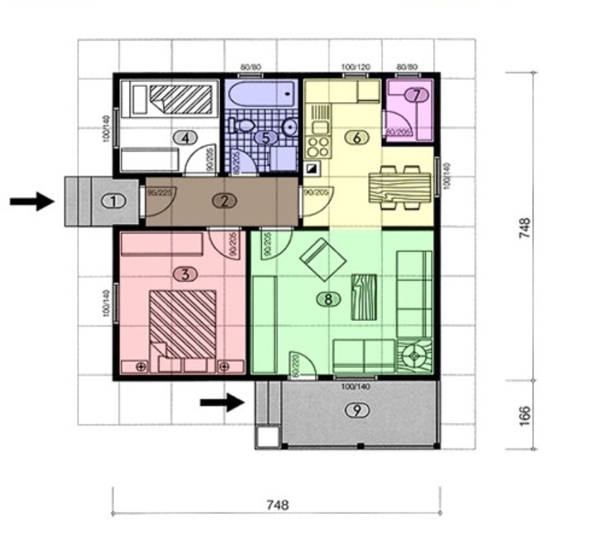
Tehničke karakteristike
Kvadratura (bruto): 64.05 m2
Kvadratura (neto): 57.53 m2
Broj soba: 5
Prostorije:
1. Ulaz 1.91 m2
2. Predsoblje 4.20 m2
3. Decija soba 5.29 m2
4. Spavaca soba 10.15 m2
5. Kupatilo 3.91 m2
6. Kuhinja 3.12 m2
7. Trpezarija 5.61 m2
8. Ostava 1.65 m2
9. Dnevna soba 14.82 m2
10. Terasa 6.87 m2



